Tahoe
Contact us for custom quote
Contact SalesSpecifications
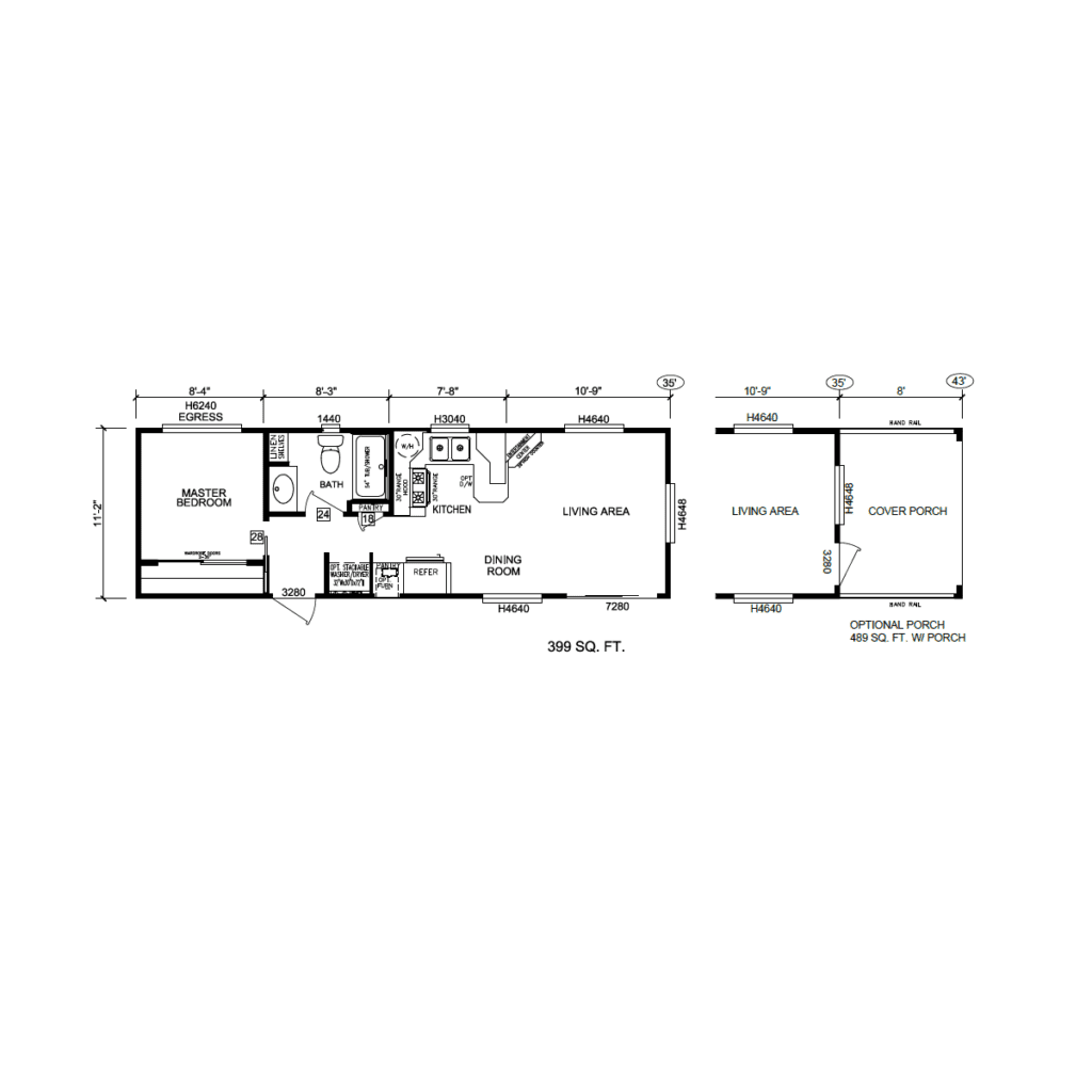
| Length | 35' 0" |
|---|---|
| Width | 11' 2" |
| Square Footage | 399 sq ft |
| Manufacturer | Sierra Limited |
Features
Bathroom
Bedroom
Exterior
Miscelleaneous
- Secondary Door
| Length | 35' 0" |
|---|---|
| Width | 11' 2" |
| Square Footage | 399 sq ft |
| Manufacturer | Sierra Limited |