Qualridge 39FLSKL
Contact us for custom quote
Contact SalesEnjoy a whole new dimension of holiday living. Quailridge cottages are designed to be aesthetically pleasing and fully functional. They’re quality built to meet or exceed national park model standards, so you know you’re investing in long lasting value. Perfect for weekend getaways or a whole season the Quailridge won’t break the budget but will exceed your expectations. Quality, value, integrity, Quailridge has you covered.
EXTERIOR FEATURES
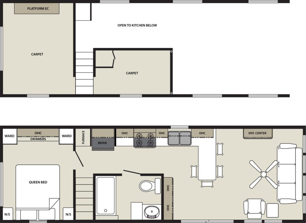
10" Extruded Steel I-Beam Chassis Detachable Hitch Corrosion Resistent Metal Underbelly 2"X6" Transverse Floor Joist 16" On Center 5/8" Tongue and Groove Plywood Decking Central Floor Ducted Heat R22 Floor Insulation 2"X4" Sidewall & Endwall Studs 16" On Center R11 Sidewall Insulation 3/8" OSB Wall Sheathing House Type Vapor Barrior On All Ext. Walls 90" Sidewall Height Residential Thermopane Single Hung Windows Rear Door W/Deadbolt and Screen (Where Applicable) Vinyl Siding W/Limited Lifetime Warranty Residential Truss Rafters R22 Roof Insulation 30 Year Warranty Asphalt ShinglesBATH AREA
1 Piece Fiberglass Tub/Shower W/Curtain Residential Porcelain Elongated Toilet Power Exhaust Fan W/Light Medicine Cabinet Linen Closet (Where Applicable) Large Vanity Sink Residential Style Bath Accessories GFI ReceptacleADDITIONAL FEATURES
50 Electrical Service W/Power Cord 56,000 BTU Furnace W/Electric Ignition N/A 355FL 20 Gallon Electric Water Heater LP And Smoke Detectors Fire Extinguisher Residential Rocker Light Swithces Gypsum Ceiling Board W/ Crown Molding Exterior Porch Lights 2 Exterior GFI Recepts Hurricane Tie Down StrapsBEDROOM AREA
60X75 Serta Queen Mattress Oversized Wardrobe W/Drawers Egress Window LED Lighting Residential Carpet and Padding Built In Nightstands (Where Applicable)LIVING AREA
Hide A Bed Sofa W/Recliner Vertical Blind at Patio Door Designer Window Valances Entertainment Center W/Cable Hook-Up Ceiling Fan W/Light Kit Solid Wood End Table Platform Entertainment Center (Loft Models)KITCHEN/DINING AREA
18 Cu. Ft. Frost Free Refrigerator 30" Gas Range Spacemaster Over the Range Microwave Residential Cabinetry Laminated Countertop With Backsplash Full Extension Drawer Guides Deep Stainless Steel Sink W/Pull Down Sprayer Faucet USB Port Hardwood Dinette Table W/4 Chairs LED Lighting GFI ReceptaclesOPTIONAL FEATURES
Premium Vinyl Siding Barn Style Metal Roof Premium Upgrade Cabinetry Residential Upgrade Vinyl Flooring Additional Recliner Black Appliances IPO White Stainless Steel Appliances IPO White 18" Dishwasher (Where Applicable) Single Bowl Sink Icemaker Installed Washer/Dryer Prep (Where Applicable) Stackable Washer/Dryer (Where Applicable) Box Bay (Where Applicable) 40,000 BTU RV Furnace IPO 56K 15,000 BTU Floor Duct A/C 5,000 BTU Loft A/C (Loft Models Only) 16 Gallon Gas/Electric WH IPO 20 Gallon Shower IPO Tub/Shower Shower Doors Electric Fireplace Lft Up Queen Bed W/Storage Bench Dinette W/Storage (Where Applicable) Tall Loft (Loft Models Only) Pit Group IPO Hide A Bed and Recliner Cedar Panel Walls Cedar Panel Ceiling Accent WallSpecifications
| Manufacturer | Qualridge |
|---|















