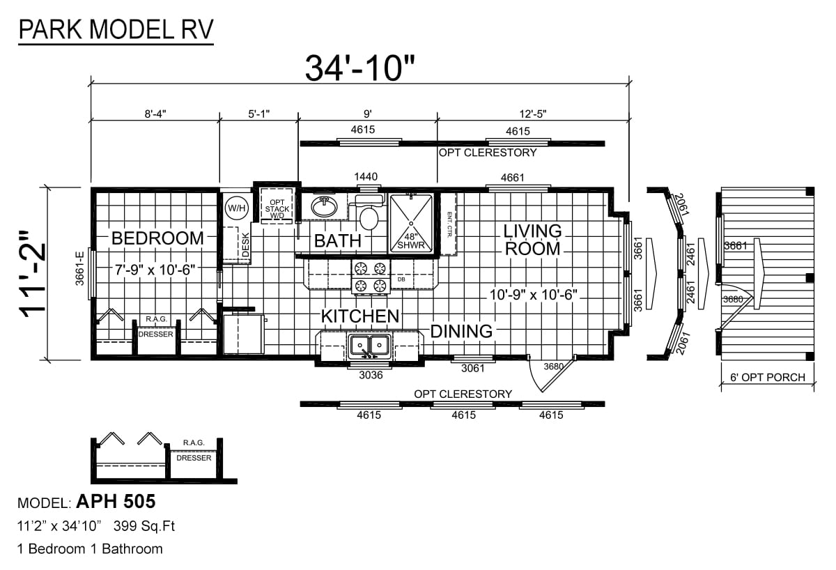
Champion Athens – APH 505 Feb 26, 2026 Champion Athens – APH 505#APH 505 Custom Quote Contact us for custom quoteContact SalesSpecificationsManufacturerAthens-ChampionFeaturesBathroomBedroomExtended LoftHas LoftLoftShare on FacebookTweetFollow us