Paradise

Paradise

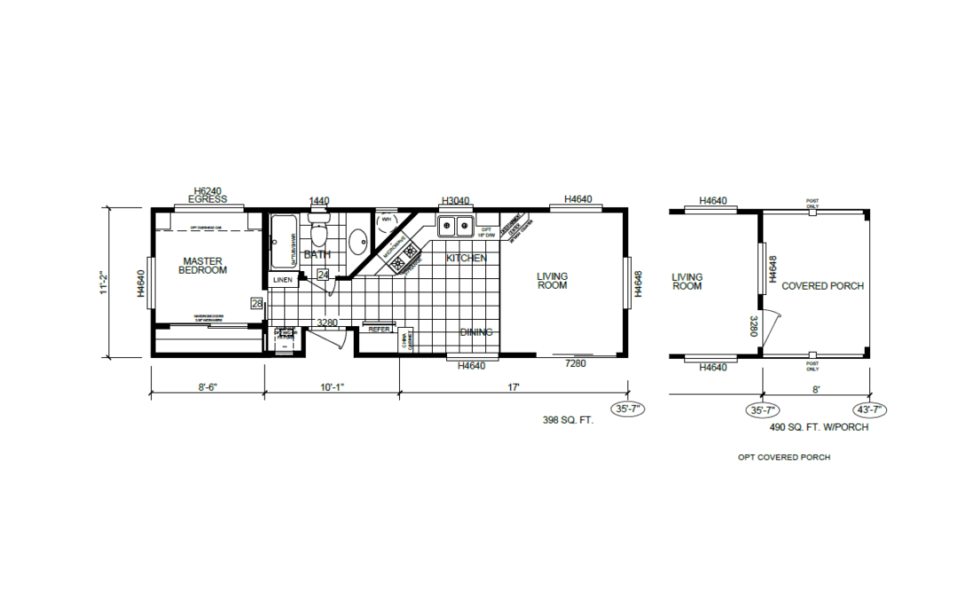
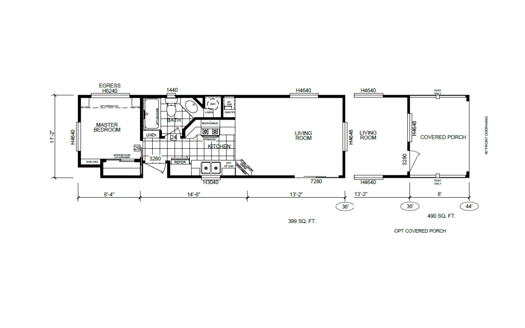
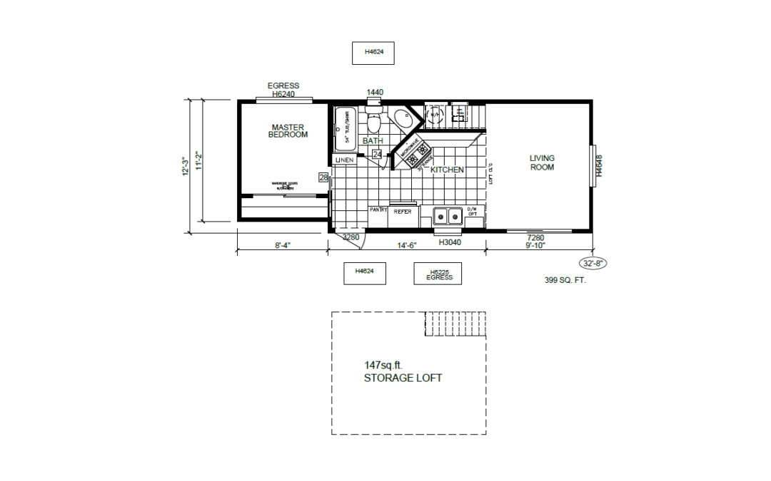
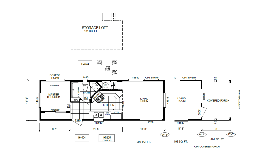
Our Silvercrest Sierra Limited Paradise park model is a spacious and classy lofted tiny home with an option for an alternative wheelchair-friendly layout! Get a Custom Price Quote
YouTube
Pinterest
fb-share-icon